Velkommen til Pilehavevej 5 på det sydlige Vestlolland.
Denne landejendom har gennemgået en større istandsættelse, og fremstår arkitektonisk meget spændende med loft til kip og synlig træbjælkekonstruktion, ligesom den primære varmekilde er både miljørigtig og komfortabel med vandbårent gulvvarme i hele stueplan. Den nye køber får dog stadigvæk mulighed for at færdiggøre de etablerede 2 badeværelser, samt istandsætte den tilhørende garage med værksted, der er oplagt til aktiviteter uanset om man ønsker at skrue på veteranbiler eller spille en gang billard eller bordtennis.
Ejendommen ligger i naturskønne landlige omgivelser med en flot udsigt til åbne marker og store vidder, selvom der samtidig alene er 5 km. til såvel Dagli’ Brugsen i Dannemare eller 5 km. til Hummingen og Kramnitze med dejlige badestrande, flere spisesteder, kulturhus, Western Camp med arrangementer, campingplads med pool og stort legeområde samt maritimt havnemiljø med årlig havnefestival. Som nærmeste handelsby ligger havnebyen Nakskov bare 14 km. fra ejendommen, ligesom der kun er 17 km. til Lalandia Badeland og den kommende faste forbindelse over Femern Bælt.
Til ejendommen hører en nem anlagt have, hvor der er mulighed for selv at anlægge sine terrassearealer, bålstedet til de hyggelige sommeraftener eller nedgrave trampolinen til fysisk aktivitet ung som ældre.
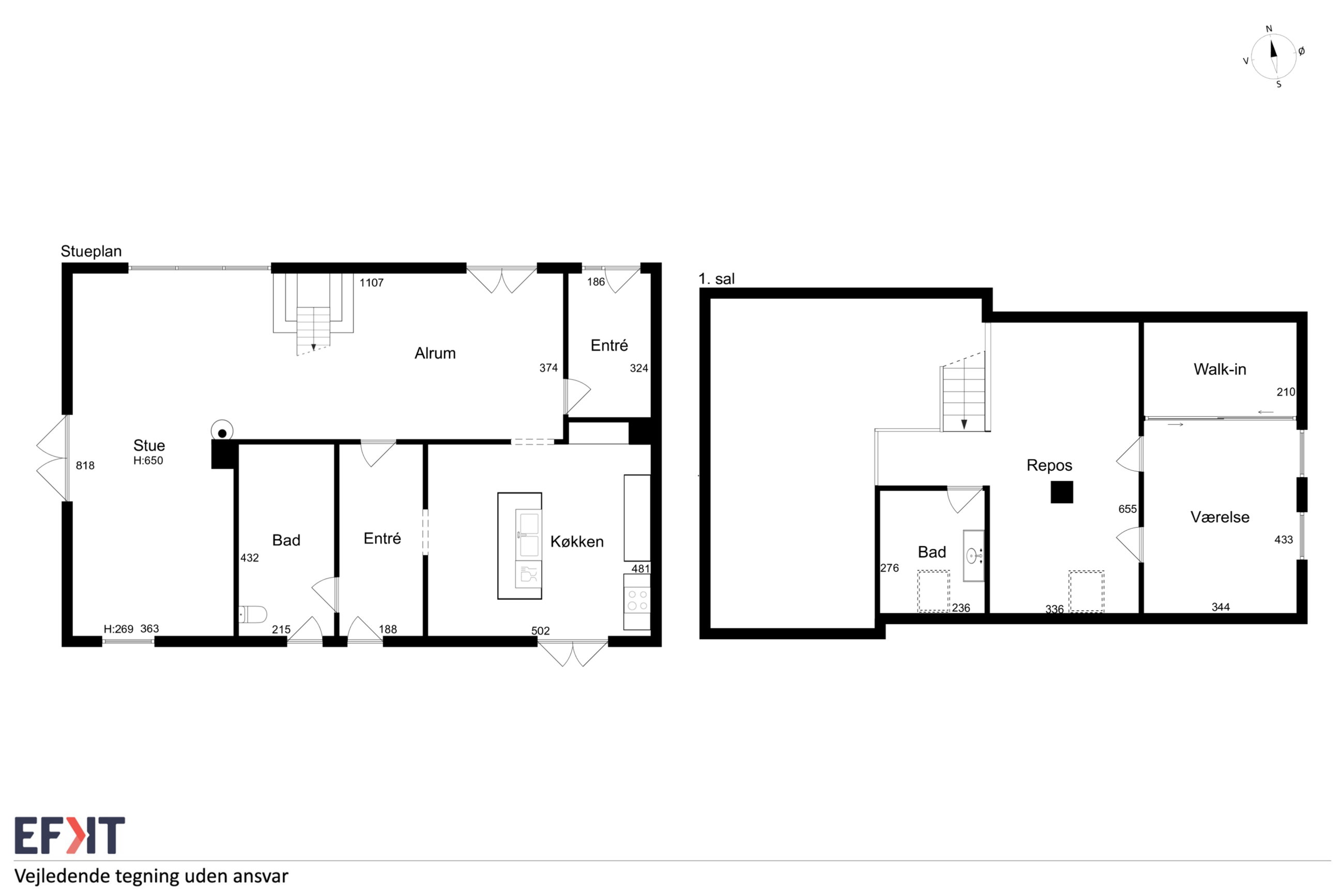
Ejendommen er indrettet med en rummelig baggang med god skabsplads til fx sko og overtøj. Herfra der adgang til det store elementkøkken med vaskeø, der også vil kunne åbne op imod spisestuen, som ligger i naturlig sammenhæng med køkkenet. Fra spisestueafdelingen og oplagte alrum ligger den store stue, hvorfra der er et fantastisk lysindfald fra de store vinduespartier, og udgang til den sydvestvendte terrasse, der byder på de smukkeste solnedgange over markerne. I stuen er der installeret brændeovn, der kan gøre en allerede hyggelig aften en smule hyggeligere, ligesom trappen til 1. salen er placeret her. Hovedentré der dog tidligere også har været anvendt som yderligere et soveværelse. Endelig et rummelig påbegyndt badeværelse med toilet og brusekabine.
1. salen er indrettet med en stor møblerbar repos, hvor der både er plads til at udfolde sig kreativt på det hvide lærred, eller hvis hjemmearbejdspladsen skal placeres, så udsigten bliver bedst muligt, ligesom der stadigvæk er plads til at indrettet yderligere et værelse. Det nuværende store soveværelse er med tilstødende garderoberum/walk-in-closet, men er allerede forberedt til at kunne opdeles i 2 værelser. Endelig det andet påbegyndte badeværelse, som kan færdigindrettes af køber.
Ejendommen opvarmes af luft til vand varmepumpeanlæg, der således sikrer en både miljørigtig og rigtig god varmeøkonomi i henhold til ejendommens høje isoleringsniveau og Energimærke A2010.
En helt igennem utrolig spændende landejendom, der er oplagt til såvel køberen, som ønsker et hjem, der er anderledes end den brede befolknings, men også køberen der søger en flexbolig uden bopælspligt, som kan bruges på fridage, forlængede weekender eller ferier på landet, når der skal fyldes balsam på sjælen og batterierne oplades!



